- Description
- Features
- Delivery
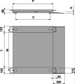
Click here to view a specification PDF
|
Quality / Certification Assurance with every Solution
When you work in an industry that involves transporting multiple vehicles with heavy units and materials, weighing becomes a necessity. Driving a vehicle on the road is not road legal due to its weight. Having your vehicles weighed incorrectly could ultimately leave your business vulnerable to prosecution.

